- product -
产品介绍:KYN61-40.5(Z)铠装移开式交流金属封闭开关设备1、概述KYN61-40.5(Z)型铠装移开式交流金属封闭开关设备,适用于三相交流50HZ,额定电压35KV单母线及单母线分段电力系统,作为发电厂、变电站、工矿企业、高层建筑等变配电中接收和分配电能之用,对电路具有保护、控制……
KYN61-40.5(Z)铠装移开式交流金属封闭开关设备
1、概述
KYN61-40.5(Z)型铠装移开式交流金属封闭开关设备,适用于三相交流50HZ,额定电压35KV单母线及单母线分段电力系统,作为发电厂、变电站、
工矿企业、高层建筑等变配电中接收和分配电能之用,对电路具有保护、控制、测量、信号传输等功能,具备完整的“五防”保护功能

2、使用条件
2.1、户内、环境温度:上限+40℃、下限-15℃
2.2、相对湿度:日平均值不大于95%,月平均值不大于90%
2.3、海拔高度:不超过1000M
2.4、饱和蒸汽压:日平均值不大于2.2×10-3MPa,月平均值不大于1.8×10-3MPa
2.5、地震烈度:不超过8度
2.6、无火灾、爆炸危验、严重污染、化学腐蚀及剧烈震动的场所
3、执行标准
GB3906-2006 3.6~40.5KV交流金属封闭开关设备和控制设备
GB1984-2003 高压交流断路器
GB1207-2006 电流互感器
GB1208-2006 电磁式电压互感器
GB1985-2004 高压交流隔离开关和接地开关
GB14285-2006 继电保护技术规范
GB/T14285-2006 继电保护和*自动装置技术规程
DL/T5136-2001 火力发电厂、变电所二次接线设计技术规程
DL/T404-2007 3.6~40.5KV交流金属封闭开关设备和控制设备
DL/T593-2006 高压开关设备和控制设备标准的共用技术要求
GB2682-81 电工成套装置中的指示灯和按扭的颜色
Gb4208-1993 外壳防护等级
4、型号含义

5、技术参数

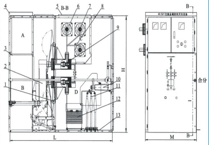
6、结构特征
KYN6140.5开关设备的外壳采用覆铝锌板经过数控机床加工,并采取多重折边工艺,通过高强度螺栓联接组合而成,使柜体不仅具有精度高、耐腐
蚀、抗氧化的作用,而且机械强度高,外观美观。KYN61-405开关设备柜体按其组成可以分为柜体和可移开式手车两部分。

7、订货须知
7.1、户内、环境温度:上限+40℃、下限-15℃
7.2、相对湿度:日平均值不大于95%,月平均值不大于90%
7.3、海拔高度:不超过1000M
7.4、饱和蒸汽压:日平均值不大于2.2×10-3MPa,月平均值不大于1.8×10-3MPa
7.5、地震烈度:不超过8度
7.6、无火灾、爆炸危险、严重污染.化学腐蚀及剧烈震动的场所
返回顶部